Korte introductie over deze woning
Nieuwbouw Halfopen Woningen - Korte Vijfwegstraat 19, Oudenburg
Moderne gezinswoning met alle comfort
Ben je op zoek naar een energiezuinige nieuwbouwwoning met een doordachte indeling? Deze halfopen bebouwingen in Oudenburg bieden alles wat je als modern gezin nodig hebt!
✨ Jouw voordelen in één oogopslag
🏡 Nieuwbouw 2025 - Instapklaar, zonder zorgen
🛏️ 3 ruime slaapkamers + mogelijkheid tot extra slaapkamer op zolder
🌟 Halfopen bebouwing - De perfecte balans tussen privacy en buurtgevoel
☀️ Lichtrijke leefruimte met open keuken
🚗 Berging/garage - Voldoende opbergruimte
🌳 Eigen tuin - Jouw buitenparadijs
⚡ Energiezuinig - Moderne isolatie en technieken
Indeling die overloopt van mogelijkheden
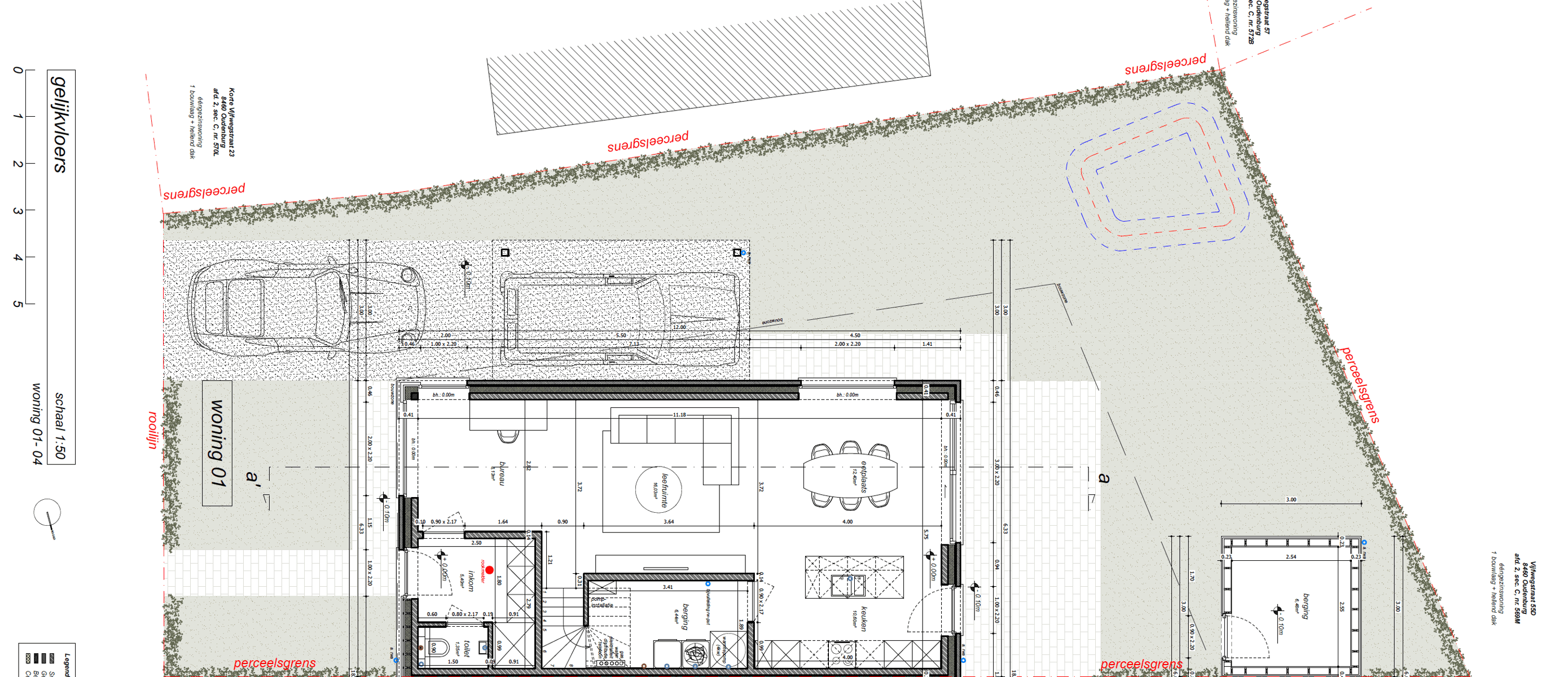
Gelijkvloers
- Ruime open leefruimte met moderne keuken
- Ideaal voor gezellige momenten met het gezin
- Bureauruimte, speelruimte, hobbyruimte,...
- Apart toilet
- Aparte bergruimte die toegankelijk is vanuit de keuken
- Toegang tot de tuin
Eerste verdieping
- 3 comfortabele slaapkamers
- Moderne badkamer
- Praktische overloop
Zolderverdieping
- Uitbreidingsmogelijkheid voor een 4e slaapkamer
- Extra opbergruimte
- Perfect als kantoor, hobbykamer of logeerkamer
Waarom kiezen voor Oudenburg?
📍 Centraal gelegen tussen Brugge en de kust
🏫 Scholen en winkels in de buurt
🚴 Uitstekende fiets- en wandelmogelijkheden
🚗 Vlotte verbinding met de E40
👨👩👧👦 Kindvriendelijke woonomgeving
Perfect voor
✓ Jonge gezinnen die graag instapklaar wonen
✓ Starters op zoek naar hun eerste eigendom
✓ Wie waarde hecht aan modern comfort en lage energiekosten
✓ Bewuste kopers die investeren in duurzaam wonen
Interesse?
Grijp deze kans om deel uit te maken van dit nieuwbouwproject!
Met slechts 4 woningen in dit project is de beschikbaarheid beperkt. Plan vandaag nog een bezichtiging in en ontdek jouw toekomstige thuis aan de Korte Vijfwegstraat in Oudenburg.






