Korte introductie over deze woning
Te koop: 3 moderne nieuwbouwwoningen in Roksem (Oudenburg)
Comfortabel wonen met tuin, garage of carport en hoogwaardige afwerking
Aan de Oude Brugseweg in Roksem (deelgemeente van Oudenburg) bouwen we drie stijlvolle en energiezuinige nieuwbouwwoningen. Deze woningen combineren modern comfort met een praktische ligging, ideaal voor gezinnen of koppels die op zoek zijn naar een duurzame woning.
Het project bestaat uit 1 gesloten bebouwing en 2 halfopen bebouwingen. Alle woningen zijn voorzien van drie volwaardige slaapkamers, een grote tuin en worden afgewerkt met oog voor kwaliteit en detail.
Woning 3 is reeds verkocht, dus wees er snel bij voor de andere twee woningen!
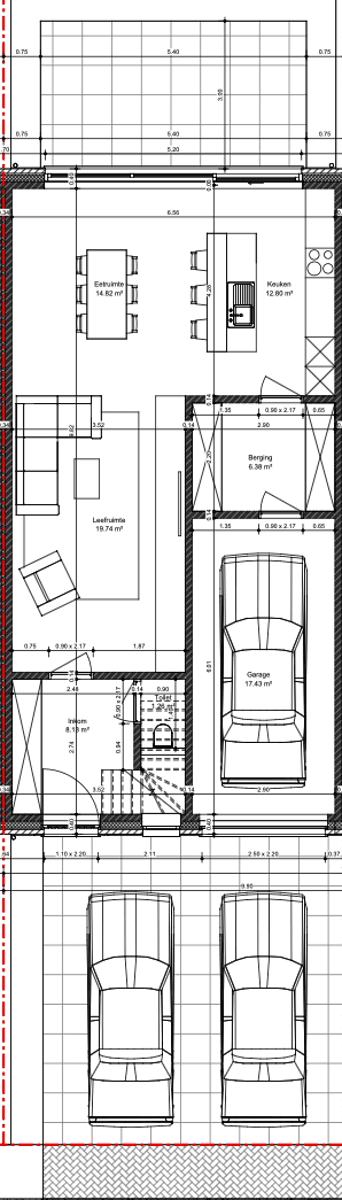
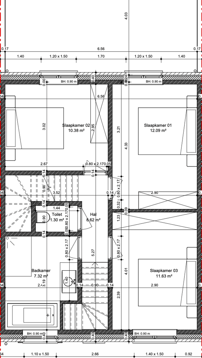
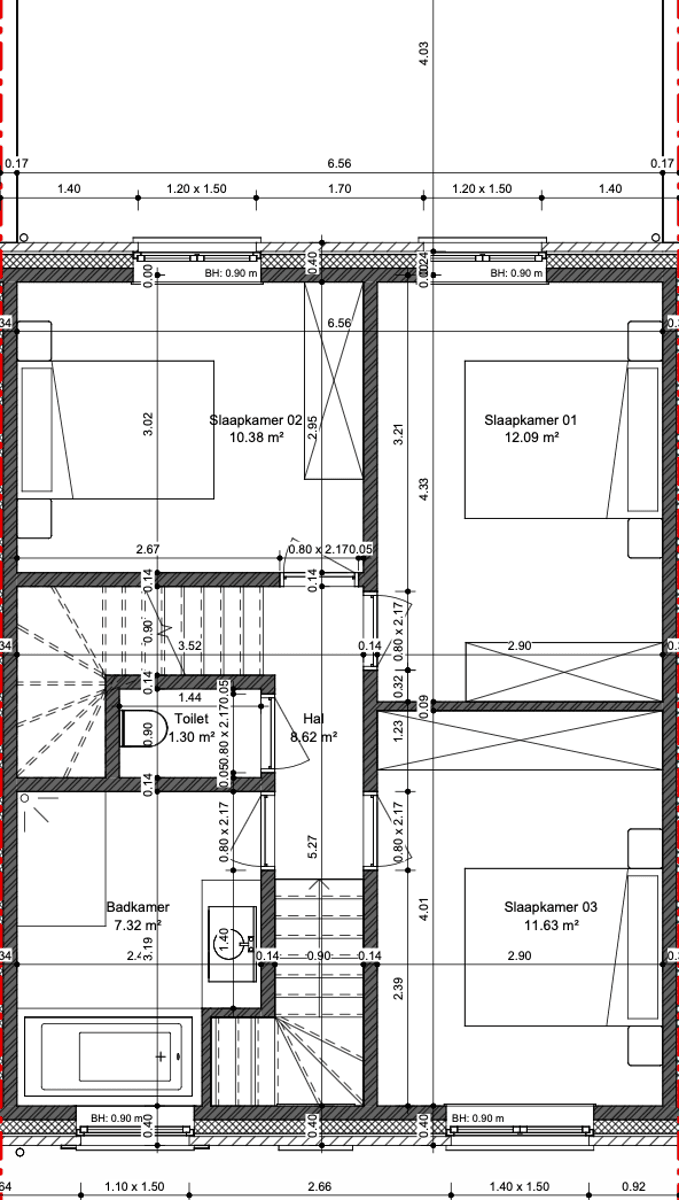
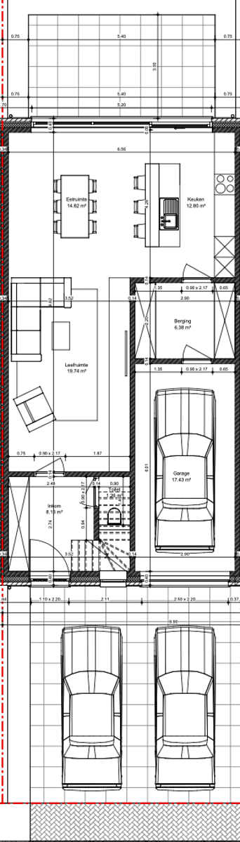
Indeling van de woningen
Elke woning heeft een slimme, functionele indeling met veel lichtinval dankzij grote raampartijen.
-
Ruime leefruimte met open keuken
-
Inkomhal met gastentoilet
-
Badkamer met zowel een inloopdouche als ligbad
-
Aparte toiletten op zowel het gelijkvloers als de verdieping
-
3 ruime slaapkamers
-
Praktische berging
Woning 1 beschikt over een carport, terwijl woning 2 een inpandige garage heeft. Deze woningen zijn perfect afgestemd op het moderne gezinsleven, met voldoende ruimte voor opslag, fietsen en hobby’s.
De grote, onderhoudsvriendelijke tuinen bieden ruimte voor ontspanning, spelende kinderen of gezellige zomeravonden met vrienden en familie.
Energiezuinig en duurzaam wonen
De woningen worden gebouwd volgens de nieuwste energienormen. Dankzij een energiezuinige bouwmethode en hoogwaardige isolatie geniet je van lage energiekosten en een aangenaam binnenklimaat. Optioneel is BEN-waardige afwerking mogelijk.
Ligging
Deze woningen bevinden zich op een rustige locatie in Roksem, met een vlotte verbinding naar Oostende, Gistel, Brugge en de autosnelweg. Winkels, scholen en openbaar vervoer zijn makkelijk bereikbaar, waardoor je hier geniet van zowel rust als comfort.
Troeven op een rijtje:
✔ Moderne architectuur en duurzame materialen
✔ Energiezuinig en toekomstgericht
✔ Grote, zonnige tuin
✔ 3 slaapkamers – ideaal voor gezinnen
✔ Badkamer met inloopdouche én bad
✔ Vlotte bereikbaarheid naar stad en kust
✔ Woning 3 reeds verkocht – grijp je kans!
Interesse?
Wil je graag meer informatie over deze woningen of een bezoek ter plaatse? Neem gerust contact op. Wij begeleiden je graag persoonlijk in jouw zoektocht naar jouw nieuwe thuis.






