Korte introductie over deze woning
Nieuwbouwwoningen in Ettelgem – Modern, Energiezuinig en Ruim Wonen!
REEDS 2 WONINGEN VERKOCHT!
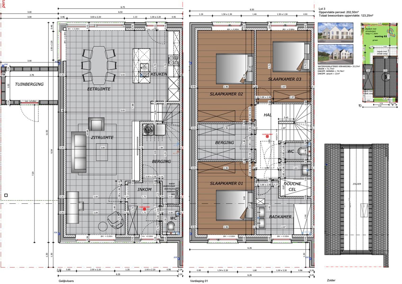
Ontdek deze 7 prachtige nieuwbouwwoningen in de Vijfwegstraat - Klokkeput te Ettelgem. Een unieke kans om te wonen in een moderne, energiezuinige woning met zonnepanelen en een warmtepomp.
Duurzaam en comfortabel
Deze woningen zijn ontworpen met oog voor energiezuinigheid en wooncomfort. Dankzij de zonnepanelen en warmtepomp geniet u van een lagere energierekening en een milieuvriendelijke woning.
Ruimte en flexibiliteit
- Keuze uit halfopen of gesloten bebouwing
- Beschikbaar met 3 of 4 ruime slaapkamers
- Zolder met mogelijkheden als hobbyruimte, extra slaapkamer of speelkamer
- Lichtrijke open woonkamer met keuken en eetruimte
- Extra bergruimte voor al uw spullen
Moderne badkamers
- Hoofdbadkamer met ligbad, wastafel en inloopdouche of ligbad
- Tweede badkamer met douche en wastafel
- Apart toilet op het gelijkvloers en de eerste verdieping
️
Comfortabele slaapkamers
Elke slaapkamer biedt ruimte voor een dubbel bed en een kast, ideaal voor gezinnen of wie graag ruim woont.
Toplocatie in Ettelgem
Gelegen in een rustige, groene omgeving, maar toch dichtbij winkels, scholen en belangrijke invalswegen.
Uw droomwoning wacht op u!
Mis deze kans niet en ontdek zelf het comfort en de luxe van deze nieuwbouwwoningen. Contacteer ons vandaag voor meer informatie of een bezoek!






