In optie
Intro
Foto's
Details

Korte introductie over deze woning

Nieuwbouw Halfopen Woningen - Korte Vijfwegstraat 19, Oudenburg

Moderne gezinswoning met alle comfort

Ben je op zoek naar een energiezuinige nieuwbouwwoning met een doordachte indeling? Deze halfopen bebouwingen in Oudenburg bieden alles wat je als modern gezin nodig hebt!

✨ Jouw voordelen in één oogopslag

🏡 Nieuwbouw 2025 - Instapklaar, zonder zorgen
🛏️ 3 ruime slaapkamers + mogelijkheid tot extra slaapkamer op zolder
🌟 Halfopen bebouwing - De perfecte balans tussen privacy en buurtgevoel
☀️ Lichtrijke leefruimte met open keuken
🚗 Berging/garage - Voldoende opbergruimte
🌳 Eigen tuin - Jouw buitenparadijs
Energiezuinig - Moderne isolatie en technieken

Indeling die overloopt van mogelijkheden

Gelijkvloers

  • Ruime open leefruimte met moderne keuken
  • Ideaal voor gezellige momenten met het gezin
  • Bureauruimte, speelruimte, hobbyruimte,...
  • Apart toilet
  • Aparte bergruimte die toegankelijk is vanuit de keuken
  • Toegang tot de tuin

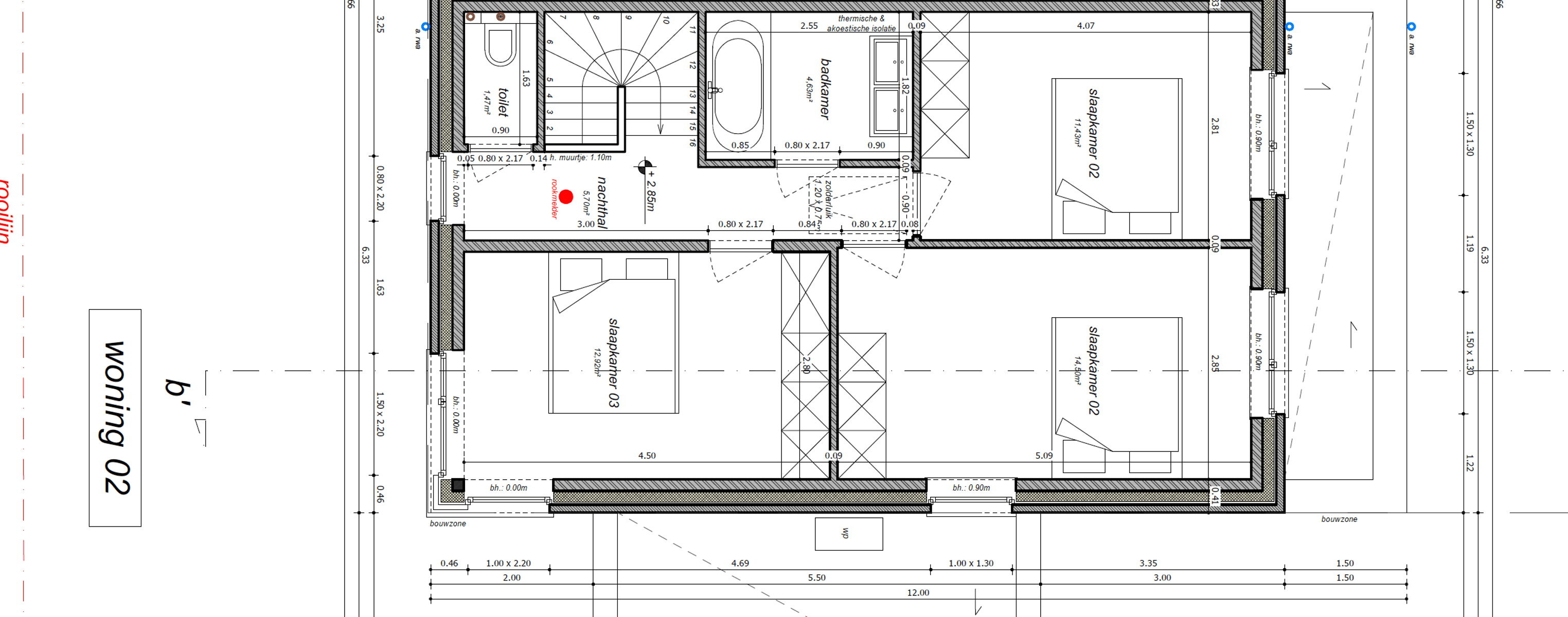
Eerste verdieping

  • 3 comfortabele slaapkamers
  • Moderne badkamer
  • Praktische overloop

Zolderverdieping

  • Uitbreidingsmogelijkheid voor een 4e slaapkamer
  • Extra opbergruimte
  • Perfect als kantoor, hobbykamer of logeerkamer


Waarom kiezen voor Oudenburg?

📍 Centraal gelegen tussen Brugge en de kust
🏫 Scholen en winkels in de buurt
🚴 Uitstekende fiets- en wandelmogelijkheden
🚗 Vlotte verbinding met de E40
👨‍👩‍👧‍👦 Kindvriendelijke woonomgeving

Perfect voor

Jonge gezinnen die graag instapklaar wonen
Starters op zoek naar hun eerste eigendom
Wie waarde hecht aan modern comfort en lage energiekosten
Bewuste kopers die investeren in duurzaam wonen

Interesse?

Grijp deze kans om deel uit te maken van dit nieuwbouwproject!

Met slechts 4 woningen in dit project is de beschikbaarheid beperkt. Plan vandaag nog een bezichtiging in en ontdek jouw toekomstige thuis aan de Korte Vijfwegstraat in Oudenburg.

72786356
72786355
72786354
72786353
72786357
72786358

Algemeen

Aantal slaapkamers3
Aantal badkamers1
Aantal toiletten2
Totale oppervlakte354.95 m²
Bewoonbare oppervlakte151.92 m²
Bouwjaar2026
Oriëntatie voorgevel-
TuinJa
Oriëntatie tuin-
Terras-
Oriëntatie terras-
Garage-
Kadastraal inkomen-

Technisch

Type verwarmingWarmtepomp
Elektriciteitskeuring-
TelefoonkabelJa
RegenwaterputJa
Dubbele beglazingJa
Isolatie-
Vloerbedekking-

Stedenbouwkundig

Overstromingsgevoelig-
DagvaardingNee
BouwvergunningJa
VoorkooprechtNee
VerkavelingsvergunningNee

Documenten en Plannen